

Camping World Stadium is set to undergo a major renovation aimed at transforming the longtime venue into a more modern, competitive destination for sports and entertainment events.
Plans submitted to the city detail a series of structural and aesthetic upgrades designed to expand capacity, enhance fan experience and extend the stadium’s operational lifespan. The project, proposed by architecture firm DLR Group, would increase seating to at least 65,000 by rebuilding the east and west upper seating bowls and adding a new upper bowl along the north end.
A new exterior skin, supported by updated hurricane bracing, would give the building a modernized appearance. The plans also call for upgraded premium suites, enhanced life safety and accessibility systems, and a retractable stage pocket in the south bowl to accommodate large concerts and live entertainment.
“The renovation of Camping World Stadium will create an iconic design that is a signature destination for the city of Orlando,” DLR Group wrote in its design narrative.

Renderings submitted with the application show sweeping updates to the stadium’s façade and surrounding entryways. Aerial views depict a unified design across all elevations, while ground level renderings feature improved pedestrian access along South Street and viewshed enhancements near Lake Lorna Doone.
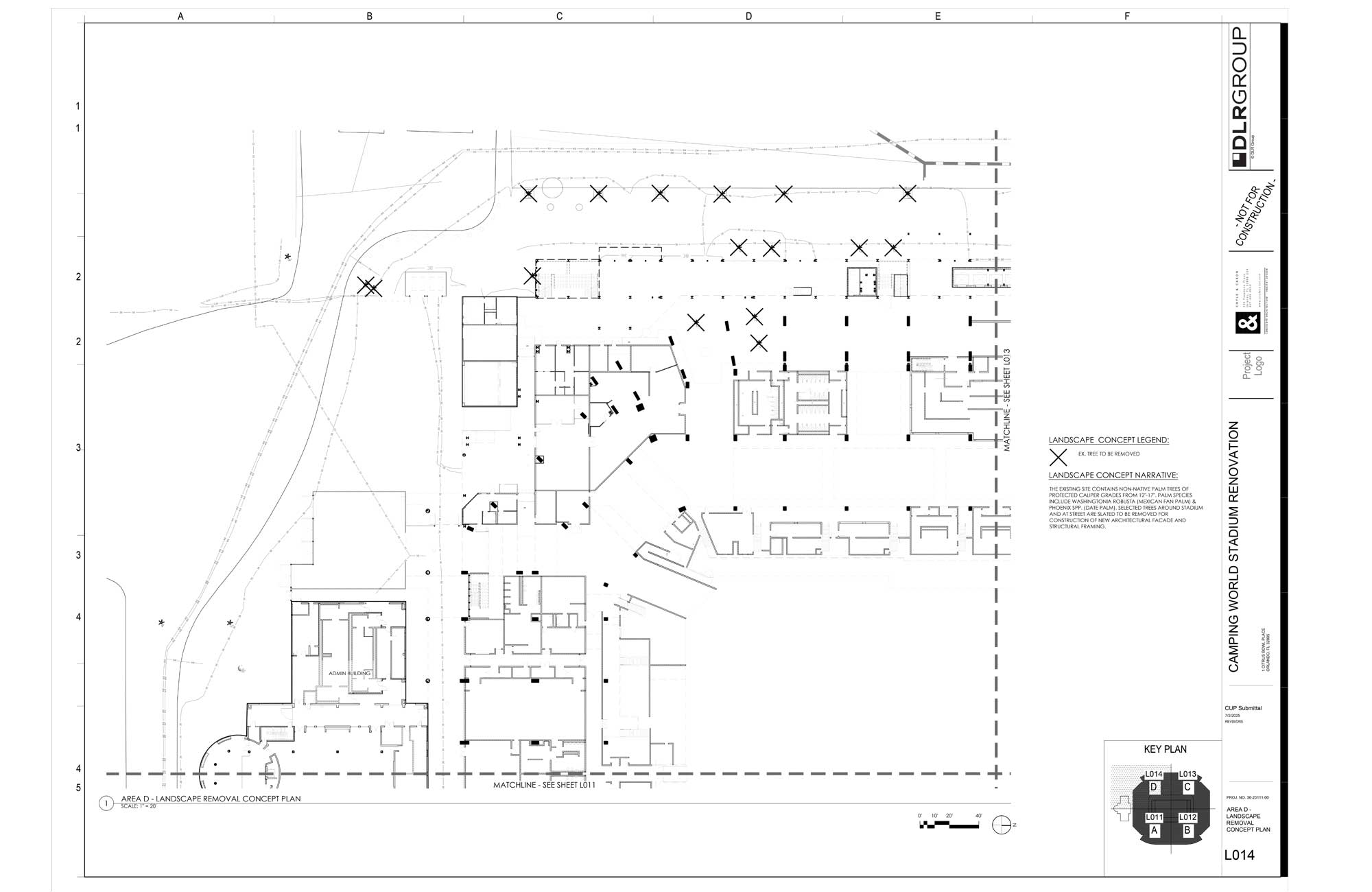
As part of the site improvements, several non-native palm trees, ranging from 12” to 17” in caliper, are slated for removal to accommodate structural changes and updated landscaping. No replacement plan has been submitted.

The stadium, located at 1610 W. Church St., sits in District 5 and occupies nearly 20 acres. Once known as the Citrus Bowl, Camping World Stadium has long served as a key venue for college football, bowl games, and community events. It has also been a centerpiece of Mayor Buddy Dyer’s broader effort to revitalize the West Lakes neighborhood and position Orlando as a year-round destination for major sports and entertainment events.
The conditional use permit is tentatively scheduled to go before the city’s Municipal Planning Board on Aug. 19. If approved, the project would move into final planning and construction phases. No cost estimate or construction timeline has been announced publicly.
The renovation proposal comes at a time when cities across the country are investing in stadium infrastructure to retain major events and attract new ones. For Orlando, this move reinforces the city's ambitions to play on a bigger stage, literally and figuratively.


“Looking ahead, these enhancements pave the way for potential hosting opportunities such as WrestleMania (WWE), FIFA 2031 Women’s World Cup, and Men’s 2031 and Women’s 2033 Rugby World Cup,” said Jason Siegel, CEO of the Greater Orlando Sports Commission, in a statement to The Orlando Life. “The ongoing commitment and investment from our elected leadership to further developing our community stadium remains crucial for the future.”
Some area business owners welcomed the proposed investment but urged the city to ensure that economic benefits are shared locally. Franc Ayala, who operates Hittn' Skins and The Nash Orlando, near the stadium and has worked and supported artists and vendors in the area for more than 20 years, expressed cautious optimism.
“The renderings look incredible, and the possibilities always seem endless… on paper,” Ayala told The Orlando Life. “But after 20 years of doing business in this area, you learn not to get too excited.”
Ayala said large events like the Pro Bowl and music festivals have brought attention to the stadium in the past, but rarely translated into direct support for nearby businesses.
“Unless there’s a policy that ensures local companies are included in staffing, merchandise or vendor contracts, most of us won’t see a dime,” he said.

Tiffany Somar paints a mural during the Pintura Project at The Nash Orlando in April 2025
For more content on local Orlando, sign up for our newsletter and follow us on Instagram